• Work
  • Contact
Jules Desarzens
  • Work
  • Contact

L’OUBLI

MANDAT
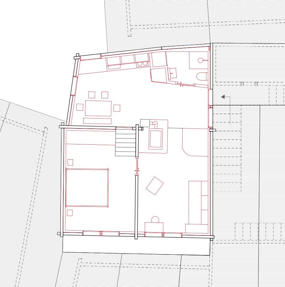
Rénovation intérieur d’un mayen au centre du vieux village de Grimentz dans le Val d’Anniviers (VS). Conception et réalisation en collaboration avec Louis Gibault, menuisier.

CONCEPT
Réalisée entre l’été 2022 et l’été 2023, la rénovation intérieure et l’aménagement mobilier d’un mayen, a porté sur son niveau central originel d’environ 50 m2, sans changement d’affectation. 

Dans un esprit de reconquête et de sauvegarde de ce patrimoine unique, le projet s’inscrit pleinement dans la mémoire du lieu. 

Le processus de rénovation intérieure consiste en la remise à niveau et la modernisation des espaces de vie : entrée, cuisine-salle à manger, salon, chambre à coucher et salle de bain. Il s’opère par la mise à nu intégrale de l’enveloppe intérieure afin de révéler les madriers en mélèze qui porteront une nouvelle enveloppe réalisée en épicéa et inspirée des formats de l’époque en lames larges de 300 à 550 mm selon une technique de menuiserie traditionnel. 

L’aménagement mobilier conçu sur mesure, déploie des mobiliers d’usage, simples et efficaces. De la conception des meubles de cuisine traités à l’huile de lin et pigments « vert conifère » avec plan de travail en pierre d’Evolène ; à ceux pour la chambre à coucher (lit et dressing) ; du mobilier de la salle de bain, au meuble d’entrée à grands tiroirs et à ceux du salon (canapé, bureau et bibliothèque), l’ensemble a cherché à s’inscrire parfaitement dans l’esprit du lieu et dans le respect du patrimoine ancestral. Les chutes de bois produites durant la rénovation ont été utilisées pour la fabrication des meubles et le reste pour être brulé dans le pierre ollaire du chalet.

Le choix du tout épicéa fait référence au bois local suisse et répond par sa proximité à l’économie circulaire dans un souci de respect de l’environnement.

Dans un mode opératoire traditionnel ont été pratiqués après étude détaillée : une isolation naturelle de l’intérieur à la laine de mouton, une finition à la chaux et savon des menuiseries bois, une conservation des madriers anciens apparents dans le salon et la chambre à coucher en mémoire du lieu, la rénovation des fenêtres traitées dans le respect des contraintes patrimoniales, le remplacement des portes intérieures par des portes à pivot inspirées des raccards, la pose de pierre d’Evolène à différents endroits, la rénovation du poêle en pierre Ollaire ancien du mayen.

Menée par deux artisans, ébéniste et menuisier, installés sur place pendant plus d’un an, le projet a montré l’importance de la cohésion sociale dans une aventure humaine hors pair mettant en jeu les habitants, les professionnels et prestataires du chantier autour du propriétaire.

MATERIAUX
Epicéa CH
Mélèze CH
Laine de mouton CH

CLIENT
Privé

REALISATION
2022 - 2023

CREDITS
Réalisation: en collaboration avec Louis Gibault, menuisier

Texte: © Nadine Gibault
Photos: © Michel Bonvin

CF062965_lium.jpg
CF062929_lium.jpg
CF062919_lium.jpg
c6764c06-2502-4f17-8341-17bc700f4c34.JPG
CF062938_lium.jpg
CF063011_lium.jpg
CF062999 basse.jpg
CF062973_lium.jpg
CF063033_lium.jpg
CF063026_lium.jpg
CF063073_lium.jpg
CF063057 basse.jpg
IMG_3556.jpeg
IMG_5395.jpeg
IMG_4960.jpeg
IMG_5399.jpeg
IMG_6266 (1).jpeg
IMG_6772.jpeg
IMG_7687.jpeg
IMG_3763 2.jpeg
Capture d’écran 2025-01-28 à 11.56.51.png
logo-BS-JD.jpg
website by //DIY